Домокомплект DoorHan 59

Стоимость от
2 322 402 ₽
Без монтажа
Подробнее
3 824 099 ₽
С монтажом
Подробнее
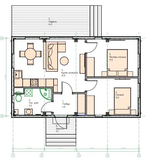
59 м²
9,770 × 6,055 м
1 этаж
2 спальни
1 кухня-гостиная
1 санузел
Запросить смету
Получить консультацию

Домокомплект DoorHan 59 под ключ - описание

Модель серии DoorHan Ультра 59 — это отличный вариант современного, уютного, вместительного и доступного по цене жилища. Планировка его внутреннего пространства предполагает размещение большой кухни-гостиной, двух спален,  достаточно просторного санузла и холла. С внешней стороны дома может быть обустроена большая открытая терраса для отдыха на свежем воздухе.
Одноэтажный дом общей площадью около 59 кв. м будет органично смотреться на небольшом участке. Он хорошо подойдет для проживания небольшой семьи или станет комфортабельным домиком для гостей.  

Домокомплект DoorHan 59 - конструкция

Все о технологии DoorHan

Новая для России технология индивидуального жилого строительства.

Основные принципы технологии домостроения DoorHan:

  • стальной каркас выдерживает большие нагрузки
  • низкие затраты на обогрев - дома очень теплые
  • возведение дома за 7 дней. Можно въезжать без отделки
  • заводское качество. Исключена вероятность некачественной сборки
Домокомплект DoorHan 59 - документация
  • Инструкции и паспорта
  • Дизайн и отделка дома
Все инструкции и паспорта в одном месте для вашего удобства.
Бесплатный дизайн-проект, разработанный нашими архитекторами, в котором собраны все готовые планировочные решения и спецификации по проведению отделочных работ.

Видео

Статьи по теме

Заказать звонок
Я даю согласие на обработку моих персональных данных в целях обработки заявки и обратной связи.
Нажимая на кнопку, вы соглашаетесь на обработку персональных данных и политики конфиденциальности .

Выберите проект по душе!

Другие проекты

Домокомплект DoorHan 118-2
Быстровозводимые дома серии DoorHan Ультра
Новинка
Цена 3 902 901 ₽
Общая площадь 118 м²
Габаритные размеры внутри 10,060 × 6,345 м
Этажность здания 2 этажа
Количество модулей 8 модулей
Заказать расчет стоимости
Домокомплект DoorHan 74
Быстровозводимые дома серии DoorHan Ультра
Мы рекомендуем
Хит продаж
Цена 2 894 765 ₽
Общая площадь 74 м²
Габаритные размеры внутри 12,120 × 7,325 м
Этажность здания 1 этаж
Количество модулей 5 модулей
Заказать расчет стоимости
Домокомплект DoorHan 88-2
Быстровозводимые дома серии DoorHan Ультра
Новинка
Цена 3 155 374 ₽
Общая площадь 88 м²
Габаритные размеры внутри 7,615 × 6,345 м
Этажность здания 2 этажа
Количество модулей 6 модулей
Заказать расчет стоимости
Быстровозводимый дом DoorHan 148-2
Быстровозводимые дома серии DoorHan Ультра
Новинка
Цена 4 626 672 ₽
Общая площадь 148 м²
Габаритные размеры внутри 12,505 × 6,345 м
Этажность здания 2 этажа
Количество модулей 10 модулей
Заказать расчет стоимости
отзывы клиентов
Алексей Р.
28.10.2021
Цена полностью соответствует качеству. Удобная планировка, современные материалы. Процесс покупки и строительства прошел гладко. Всем доволен!
Мария Ф.
28.10.2021
Купили дом серии DoorHan Ультра 59 под ключ и очень довольны! Просторный дом по разумной цене. Особенно порадовала скорость строительства и отделка. Теперь у нас есть современный, удобный дом для всей семьи.
Связаться с нами
Я даю согласие на обработку моих персональных данных в целях обработки заявки и обратной связи.
Нажимая на кнопку, вы соглашаетесь на обработку персональных данных и политики конфиденциальности .